Grundrisse

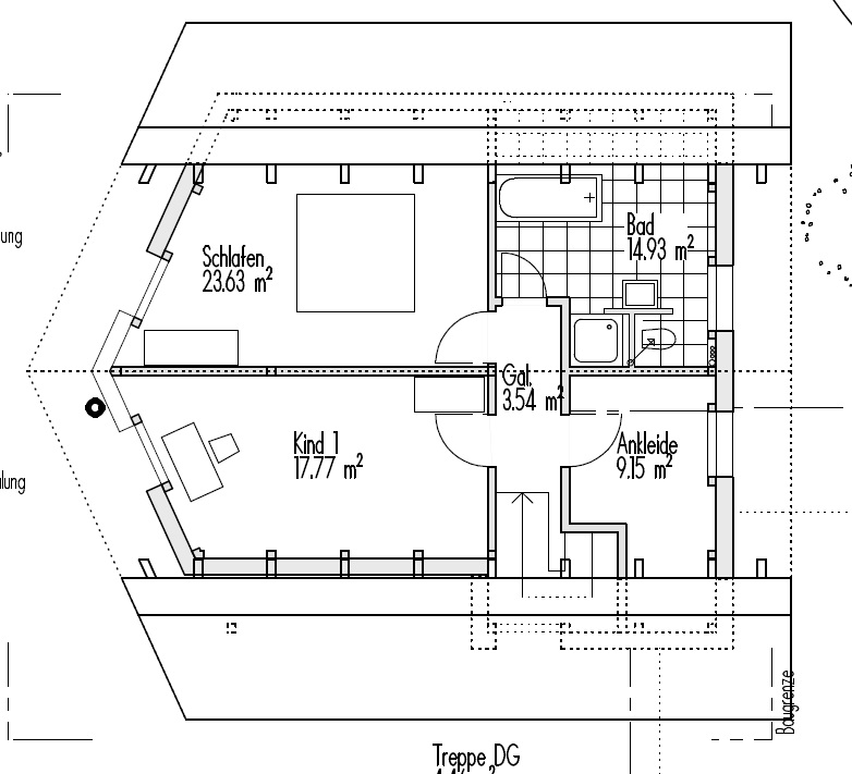
Dachgeschoss
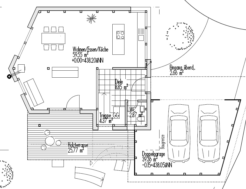
Erdgeschoss
Dachgeschoss
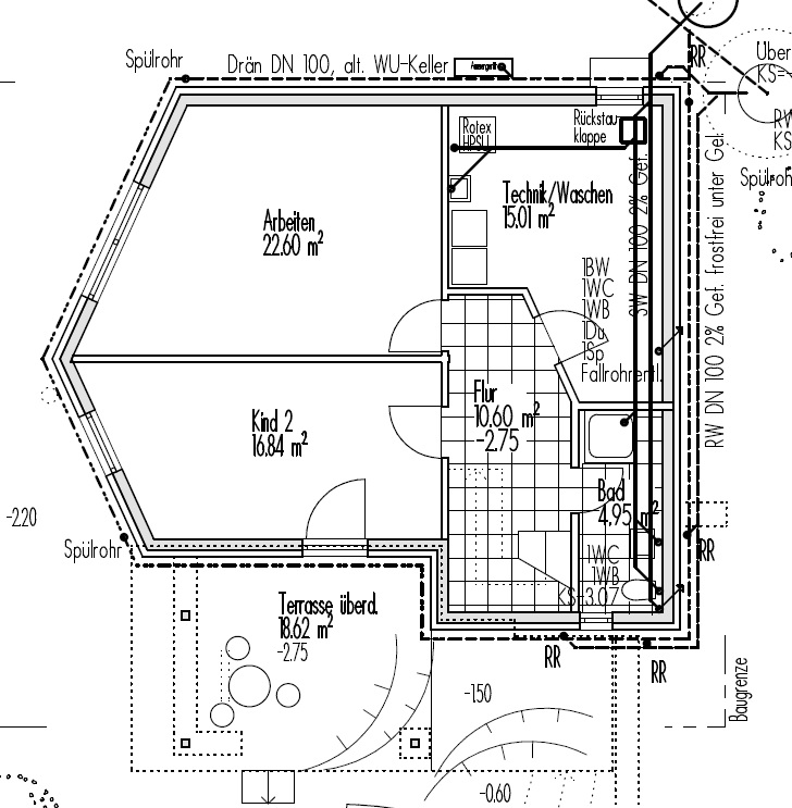
Schnitt