• Hausbeispiele
    • Familienhäuser
    • Unsere Klassiker
    • Schwedenhäuser
    • Häuser in Hanglage
    • Bungalows
    • Stadtvillen
    • Pultdachhäuser
    • Mit Wintergarten
    • Aus- und Umbauen
    • Sanierung
  • Preisbeispiele
  • Ökologisch Bauen
    • Ökologie
    • Holzskelettbau
    • Holz - der lebendige Baustoff
    • Wandaufbauten
    • Fassadenvarianten
  • Raumgestaltung
  • Musterhäuser
    • Musterhaus Hechingen
    • Bauherrenobjekt Gächingen
  • Unternehmen
  • Kundenstimmen
  • Downloads
  • Presse
  • Häuser Landkarte
  • Galerie
  • Katalog anfordern
  • Finde uns auf Facebook
  • Finde uns auf Instagram
  • Kontakt
  • Grundstücke
Kontakt aufnehmen Katalog anfordern

Grundrisse Klassiker

  • ROLF 'DAN-PROJEKT'
  • Hausbeispiele
  • Unsere Klassiker
  • Grundrisse Klassiker

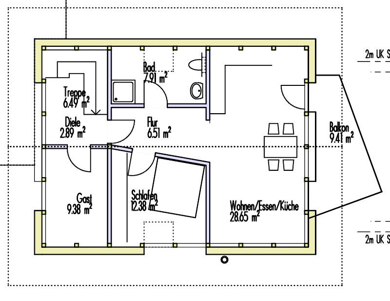
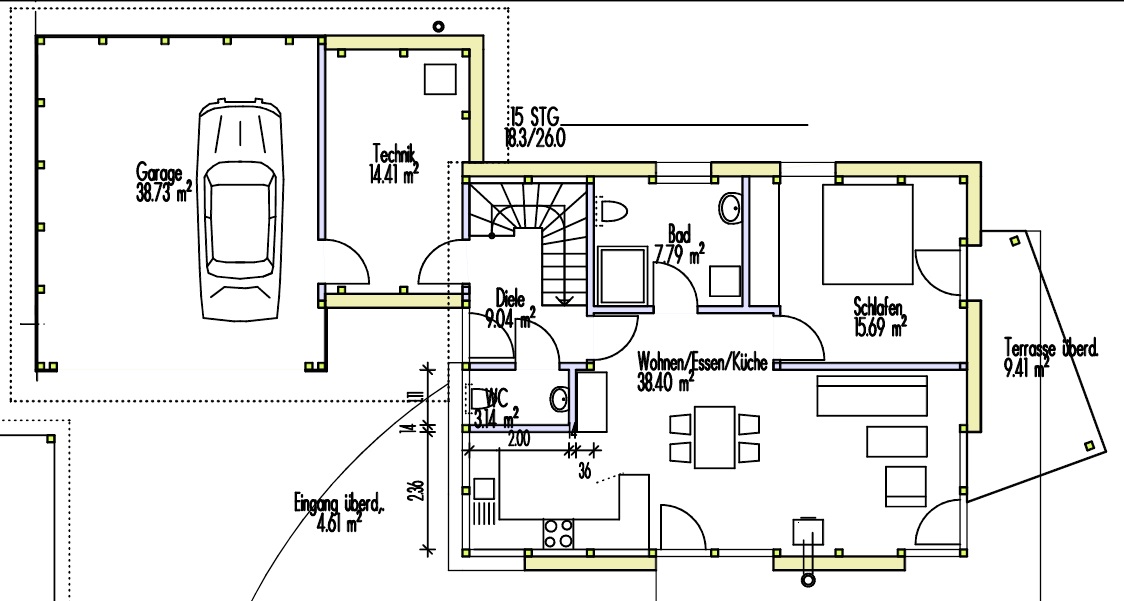
Grundrisse

Erdgeschoss
Dachgeschoss
Schnitt

Andere Traumhäuser

Navigation überspringen
  • Familienhäuser
  • Unsere Klassiker
  • Schwedenhäuser
  • Häuser in Hanglage
  • Bungalows
  • Stadtvillen
  • Pultdachhäuser
  • Mit Wintergarten
  • Aus- und Umbauen
  • Sanierung
 

Sie suchen ein Grundstück oder könnten sich vorstellen, selbst in einem ROLF 'DAN-PROJEKT' Haus zu leben? Kontaktieren Sie uns unverbindlich oder fordern Sie unseren kostenlosen Informationskatalog an. Gerne beraten wir Sie kompetent und stehen als treuer Begleiter auf dem Weg zu Ihrem persönlichen Traumhaus aus Holz und Glas an Ihrer Seite.

Weitere Bilder unserer Häuser finden Sie zudem in unserer Galerie.

Zum Kontaktformular
Zur Kataloganforderung
+49 (0) 7381 9292 0

WhatsApp:
+49 173 7236022


info@rolf-dan-projekt.de

Unternehmen
Seit mehr als 38 Jahren bauen wir als ROLF 'DAN-PROJEKT' exklusive Häuser aus Holz und Glas. Hierbei legen wir besonderen Wert auf eine ökologische Bauweise und ein ökonomisch stimmiges Gesamtkonzept. Wir sind Experten für Holzskelettbau, Massivholzhäuser (Vollholz) und Fachwerksbau mit Sitz in Münsingen (Reutlingen, Stuttgart).

Kostenlosen Katalog sichern
Sichern Sie sich jetzt unseren kostenlosen Katalog und informieren Sie sich. Wir würden uns freuen, Ihr neues Traumhaus für Sie realisieren zu dürfen!

Zur Kataloganforderung


Wir bauen Traumhäuser

Navigation überspringen
  • Familienhäuser
  • Unsere Klassiker
  • Schwedenhäuser
  • Häuser in Hanglage
  • Bungalows
  • Stadtvillen
  • Pultdachhäuser
  • Mit Wintergarten
  • Aus- und Umbauen
  • Sanierung
 

Unsere Musterhäuser

Navigation überspringen
  • Musterhaus Hechingen
  • Bauherrenobjekt Gächingen
 

Unsere Passion

Navigation überspringen
  • Ökologisch Bauen
  • Holzskelettbau
  • Raumgestaltung
 

© 2019 ROLF 'DAN-PROJEKT' - Kontakt - Datenschutz - Impressum

Cookie- und Datenschutzhinweise

Diese Webseite verwendet Cookies, um bestimmte Funktionen zu ermöglichen und das Angebot zu verbessern.

Schützt vor Cross-Site-Request-Forgery Angriffen.

Speicherdauer: Dieses Cookie bleibt nur für die aktuelle Browsersitzung bestehen.

Speichert die aktuelle PHP-Session.

Speicherdauer: Dieses Cookie bleibt nur für die aktuelle Browsersitzung bestehen.
Impressum Datenschutz