Grundrisse

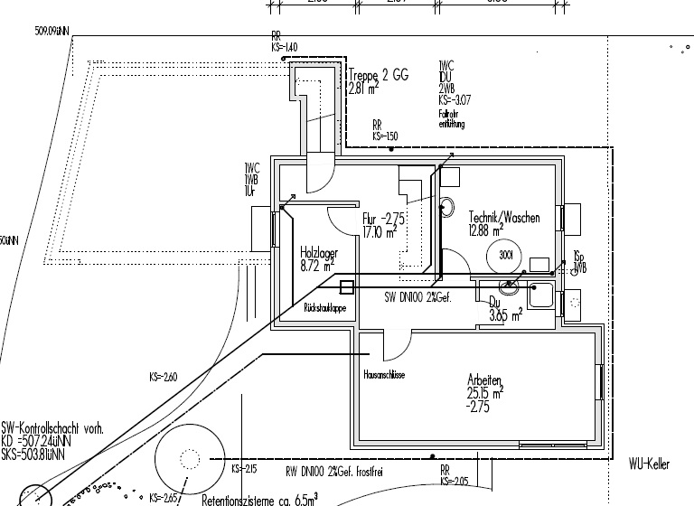
Gartengeschoss
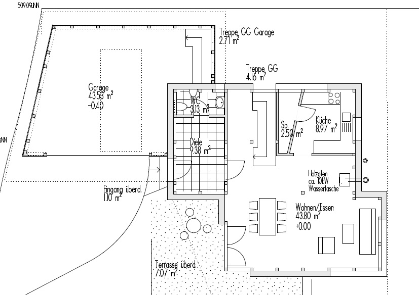
Erdgeschoss
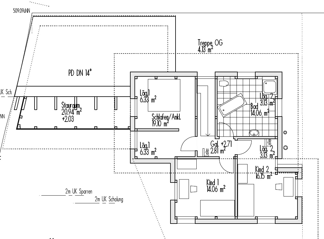
Dachgeschoss
Schnitt